• Research
  • Design
About
Shreya Thakkar
  • Research
  • Design
About

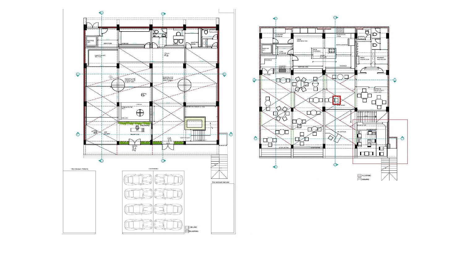
Adaptive Reuse, Anand

Conservation | Gallery design | Restaurant design

Powered by Caffeine