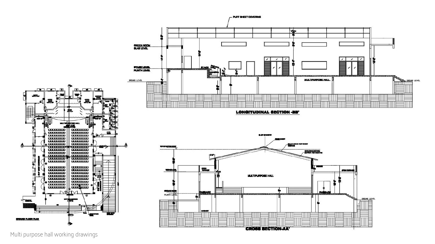
Multipurpose Hall, Bangalore
Working at the Intersection of Physical (Industrial design) and Digital (UI/UX) Interactions through mixed-methods research that informs strategic product decisions
Multipurpose Hall, Bangalore
Architecture | Construction Management | Ethnographic Research