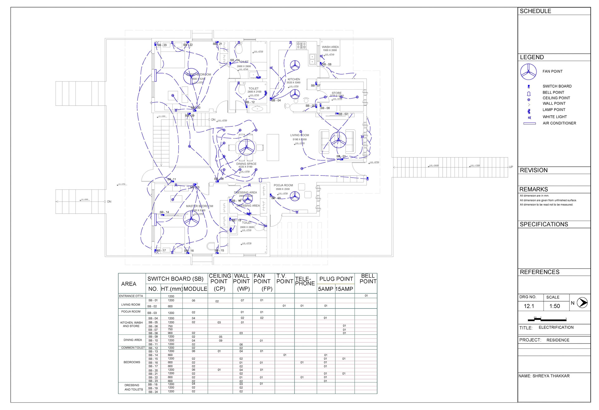
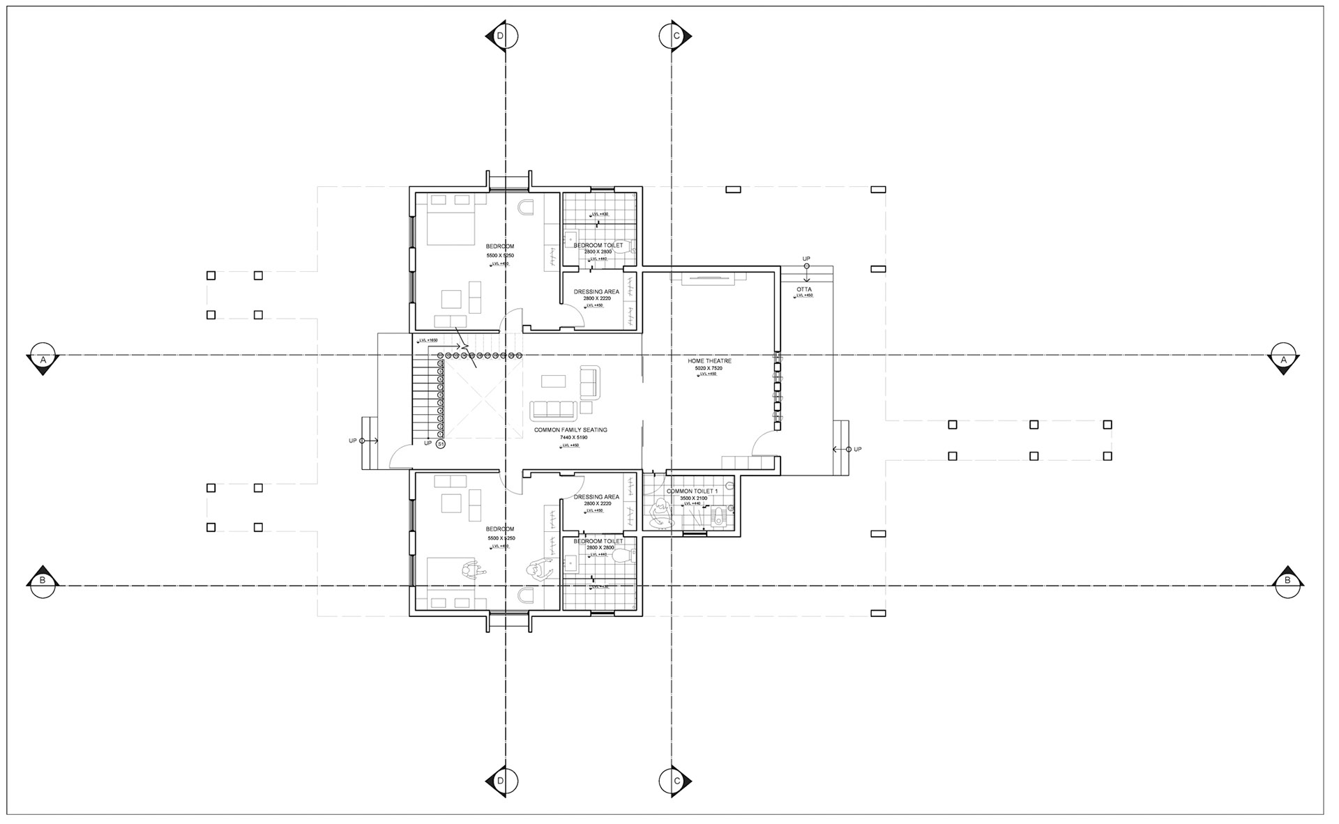
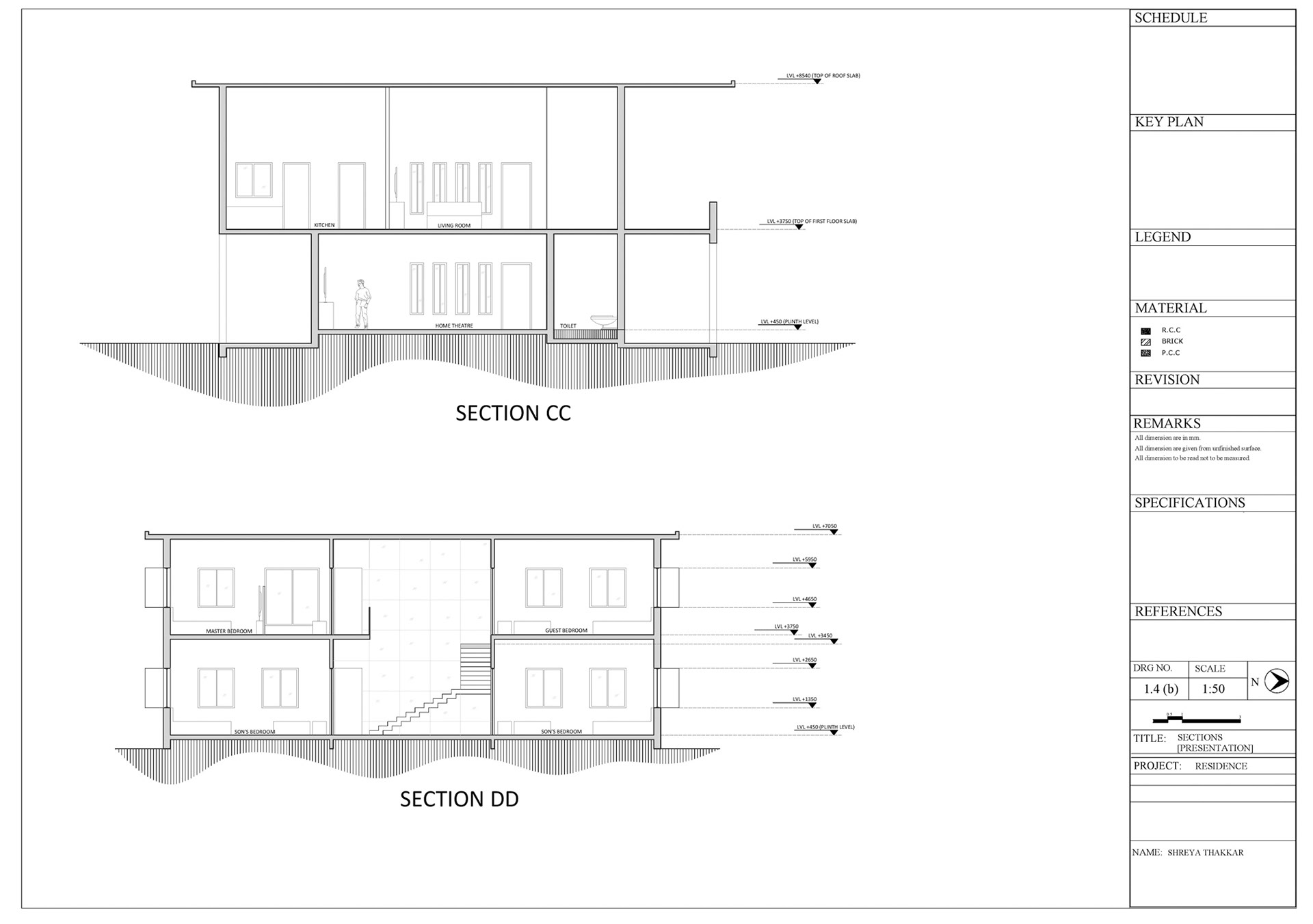
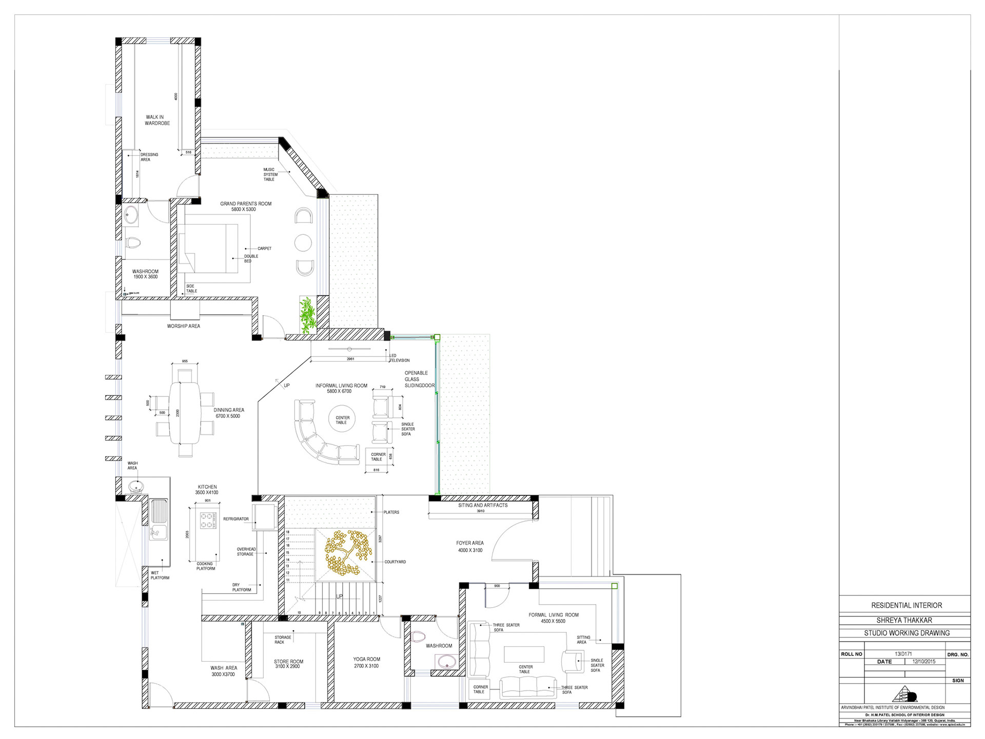
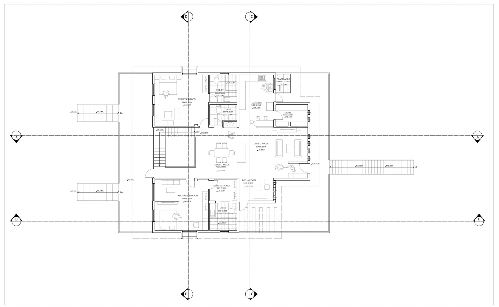
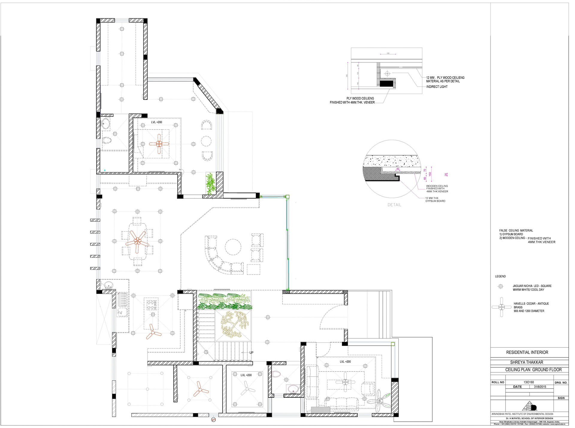
Working drawings
Working at the Intersection of Physical (Industrial design) and Digital (UI/UX) Interactions through mixed-methods research that informs strategic product decisions
Working drawings
Construction drawings | Details | Material Specification | Residential Design
You may also like
Saathi Lounge Chair
Industrial Design | Design for Manufacturing
A Pandemic In 2050
Wander On Assist 01
Industrial Design | Mixed-Method Design Research | UI UX design
Petal Power Place
Industrial Design | Design Research
Wander On Assist 02
Industrial Design | UX Research
Zilch
Industrial Design | Design for Manufacturing
Steelcase NeoCon 2019, Chicago